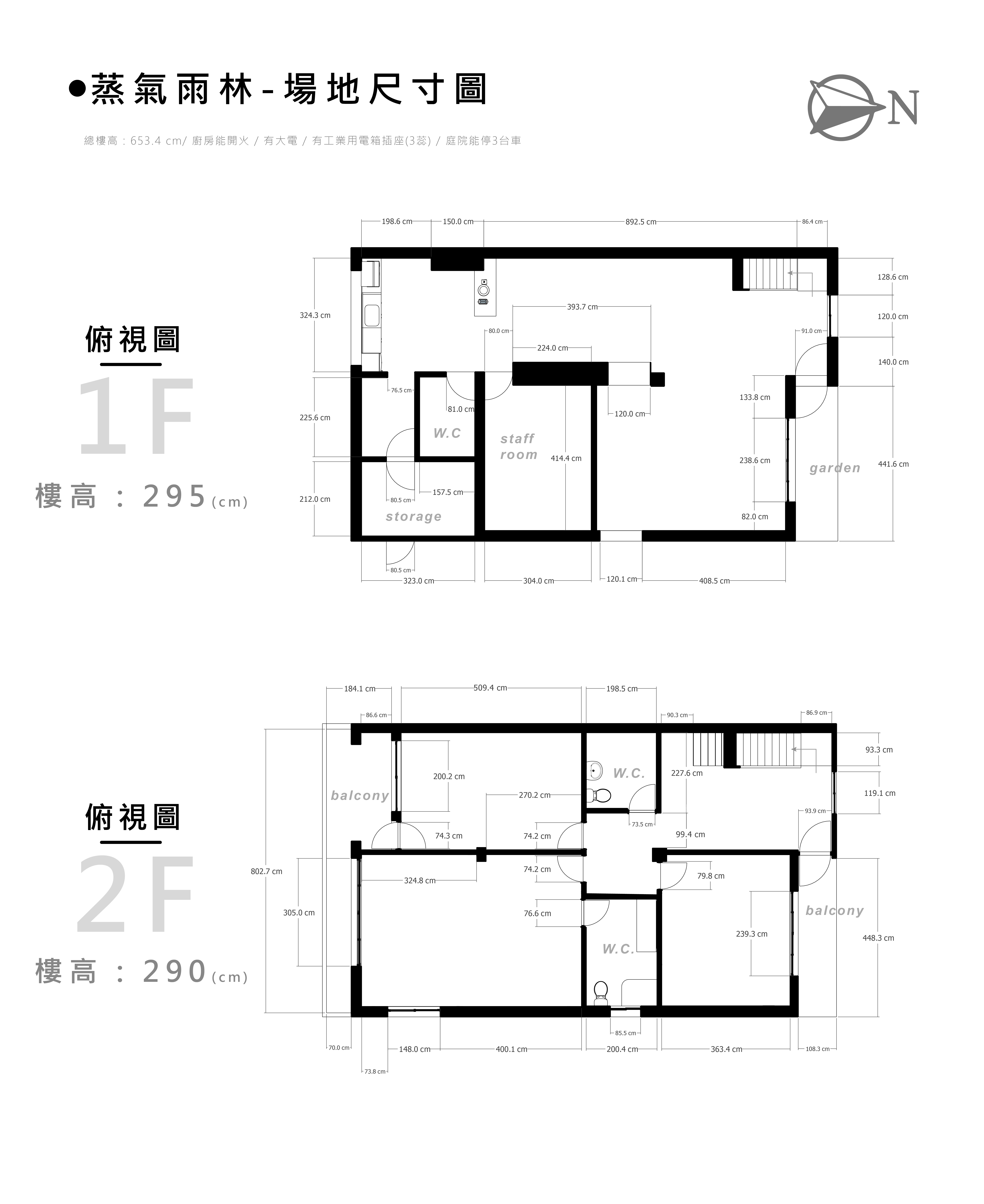
下載場景詳情

一間豎立在城市中的老房子,質樸地藏身於充滿綠意的奇岩山下,歷經了許多回憶。

獨棟的兩層樓,有著早期的台式陽台,見證歷史的鐵窗花、被綠意包圍的池塘及聳立的芒果樹,

暖暖陽光照射在庭院中,偷閑地在都市中享受一抹寧靜。

屋內沈穩的深木色為基底,保留了早期的木作裝潢,百合白的牆面增添了明亮感。

點亮一盞暖黃的燈,飄散在空氣中的懷舊氣息就像凍結了時光,期待著各種創意說出獨特的故事。

 

場景內陳設擺飾不定時更新,實際樣貌請依現場勘景為主,歡迎預約勘景參觀。

其他拍攝相關須知,可先從右上方《下載場景詳情》暸解。